Property
Beds
3
Full Baths
2
1/2 Baths
2
Year Built
2025
Sq.Footage
1,853
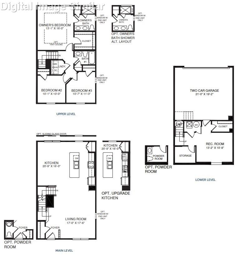
Quick Move| In-End Unit! Basement lot! Craftsman open-concept 3-story townhome w/lawn/exterior maintenance all taken care of for you. Highly ranked high school. Enjoy resort-style amenities right outside your front door-a pool, clubhouse, fitness center, playground, volleyball & more. Take a stroll along the scenic trail along the Rocky River. Live in comfort and style in this 3 beds/2.5 baths home. On the main level, enjoy a bright airy kitchen with a chef's island, quartz countertops; wall tile backsplash, Ge stainless steel appliances, pendant lighting, kitchen cabinet enhancement package, under cabinet lighting kitchen and plenty of upgraded 42" cabinets all flowing into the spacious living room w/a 1/2 bath. LVP throughout the main level. Your primary suite awaits, with a double vanity, roman shower and framed shower door, upstairs along w/2 guest beds & 2 full baths. Your laundry room is close to the bedrooms. As a bonus, the lower level includes a 2-car rear garage & a rec room. 2 parking spots! Easy access to groceries & highways, just 5 miles from your new home. Added comforts: LED Light Package A (common areas) and B (bedrooms), Light package transitional, windows in the living room side and Bed #3, LVP flooring in garage entry, foyer and garage entrance. Ceramic in Bath #1, basement bath, primary bath and laundry.
Features & Amenities
Interior
-
Other Interior Features
Entrance Foyer, Kitchen Island, Open Floorplan, Pantry, Storage, Walk-In Closet(s)
-
Total Bedrooms
3
-
Bathrooms
2
-
1/2 Bathrooms
2
-
Above Grade Finished Area
1576.0
-
Basement YN
YES
-
Cooling YN
YES
-
Cooling
Electric
-
Fireplace YN
NO
-
Heating YN
YES
-
Heating
Natural Gas
-
Pet friendly
Yes
Exterior
-
Garage
Yes
-
Garage spaces
2
-
Parking
Driveway, Garage Door Opener, Garage Faces Rear
-
Patio and Porch Features
Deck, Front Porch
-
Pool
No
Area & Lot
-
Property Type
Residential
-
Property Sub Type
Townhouse
-
Architectural Style
Transitional
Price
-
Sales Price
$383,325
-
Sq. Footage
1, 853
-
Price/SqFt
$206
HOA
-
Association
Yes
-
Association Fee
$222
-
Association Fee Frequency
Monthly
-
Association Fee Includes
N/A
School District
-
Elementary School
Patriots
-
Middle School
C.C. Griffin
-
High School
Hickory Ridge
Property Features
-
Association Amenities
Dog Park, Trail(s)
-
Senior Community YN
NO
-
Sewer
Public Sewer
Schedule a Showing
Showing scheduled successfully.
Mortgage calculator
Estimate your monthly mortgage payment, including the principal and interest, property taxes, and HOA. Adjust the values to generate a more accurate rate.
Your payment
Principal and Interest:
$
Property taxes:
$
HOA fees:
$
Total loan payment:
$
Total interest amount:
$
Location
County
Cabarrus
Elementary School
Patriots
Middle School
C.C. Griffin
High School
Hickory Ridge
Listing Courtesy of Timothy OBrien , NVR Homes, Inc./Ryan Homes
RealHub Information is provided exclusively for consumers' personal, non-commercial use, and it may not be used for any purpose other than to identify prospective properties consumers may be interested in purchasing. All information deemed reliable but not guaranteed and should be independently verified. All properties are subject to prior sale, change or withdrawal. RealHub website owner shall not be responsible for any typographical errors, misinformation, misprints and shall be held totally harmless.
Agent
Zaneta Mowatt
Call Zaneta today to schedule a private showing.
* Listings on this website come from the FMLS IDX Compilation and may be held by brokerage firms other than the owner of this website. The listing brokerage is identified in any listing details. Information is deemed reliable but is not guaranteed. If you believe any FMLS listing contains material that infringes your copyrighted work please click here to review our DMCA policy and learn how to submit a takedown request.© 2024 FMLS.