Property
Beds
3
Full Baths
3
1/2 Baths
None
Year Built
1995
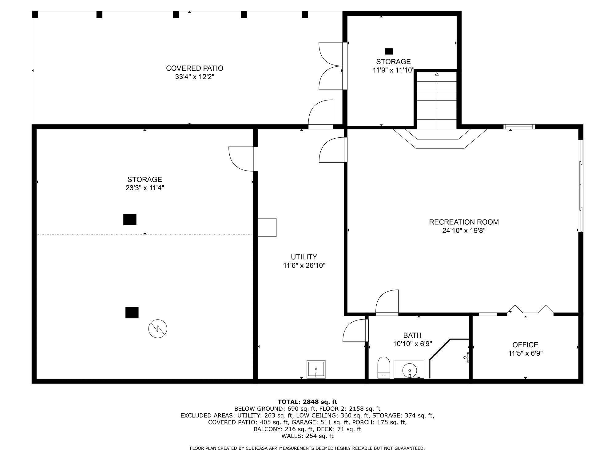
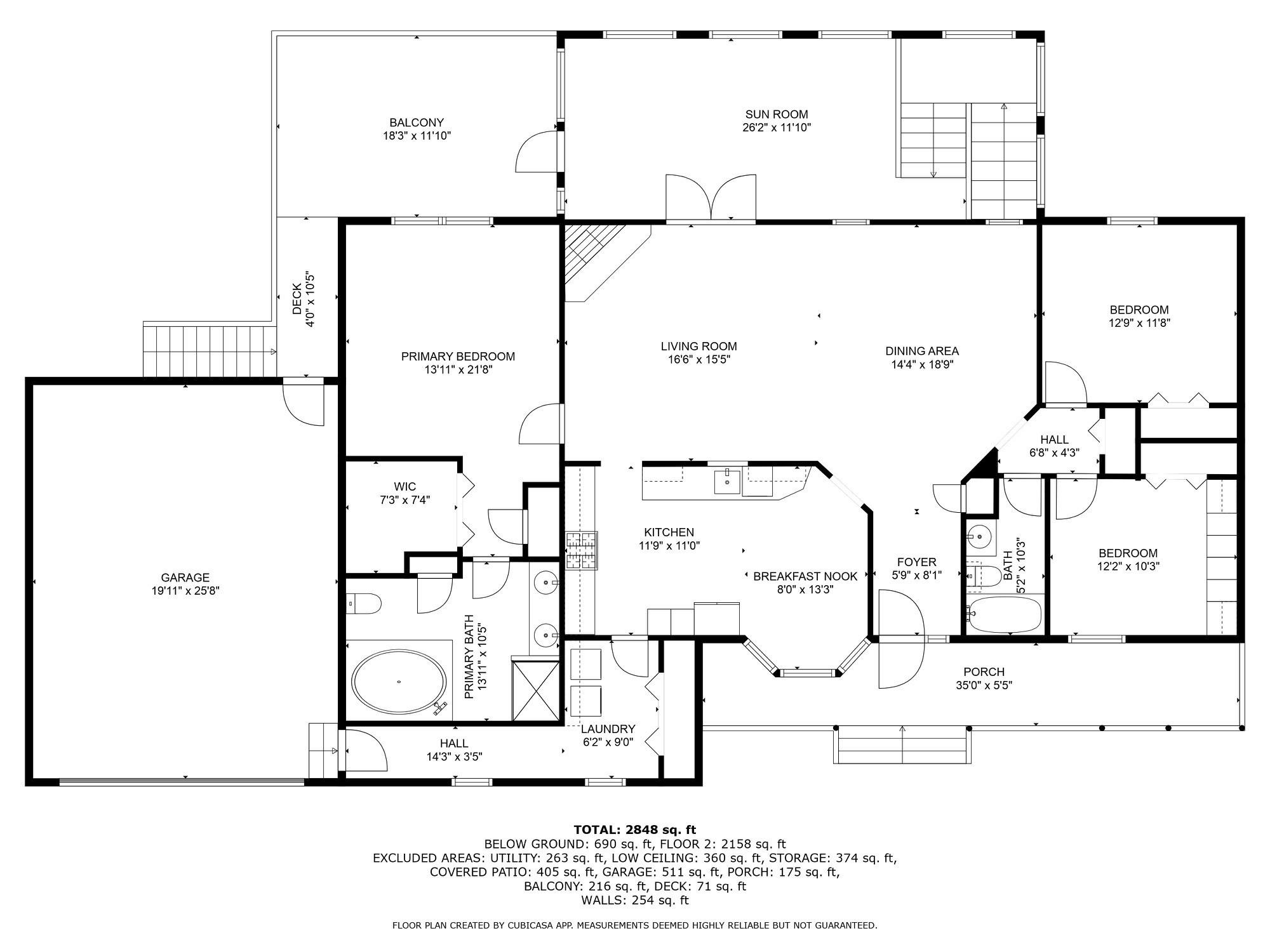
Sq.Footage
2,848
EXCELLENT VALUE for a solid and well-maintained traditional home in a convenient CONNESTEE FALLS location! Lovely landscaping and curb appeal with great outdoor decks from which to enjoy the natural setting. Cheerful eat-in kitchen open to spacious great room with nice dining area, and beyond that a simply delightful large sun room! Split bedrooms and baths. Large finished lower level is perfect for games, media room, entertainment, and overflow guests with Murphy bed and full bath. Plenty of storage throughout and a surprise potting/workshop enclosed area with outside entrance. Choose this well-loved home in a great Connestee location!
Features & Amenities
Interior
-
Other Interior Features
Entrance Foyer, Pantry, Storage, Walk-In Closet(s)
-
Total Bedrooms
3
-
Bathrooms
3
-
Above Grade Finished Area
2158.0
-
Basement YN
YES
-
Cooling YN
YES
-
Cooling
Central Air, Heat Pump
-
Fireplace YN
YES
-
Heating YN
YES
-
Heating
Electric, Forced Air, Heat Pump, Propane
-
Pet friendly
N/A
Exterior
-
Garage
Yes
-
Garage spaces
2
-
Other Exterior Features
Boat Slip
-
Parking
Driveway, Garage Door Opener, Garage Faces Front
-
Patio and Porch Features
Deck, Front Porch, Rear Porch, Side Porch
-
Pool
No
Area & Lot
-
Lot Features
Corner Lot, Cul-De-Sac, Level, Paved, Wooded
-
Property Type
Residential
-
Property Sub Type
Single Family Residence
-
Architectural Style
Traditional
Price
-
Sales Price
$699,000
-
Sq. Footage
2, 848
-
Price/SqFt
$245
HOA
-
Association
Yes
-
Association Fee
$4,057
-
Association Fee Frequency
Annually
-
Association Fee Includes
N/A
School District
-
Elementary School
Brevard
-
Middle School
Brevard
-
High School
Brevard
Property Features
-
Association Amenities
Dog Park, Trail(s)
-
Senior Community YN
NO
-
Sewer
Private Sewer
Schedule a Showing
Showing scheduled successfully.
Mortgage calculator
Estimate your monthly mortgage payment, including the principal and interest, property taxes, and HOA. Adjust the values to generate a more accurate rate.
Your payment
Principal and Interest:
$
Property taxes:
$
HOA fees:
$
Total loan payment:
$
Total interest amount:
$
Location
County
Transylvania
Elementary School
Brevard
Middle School
Brevard
High School
Brevard
Listing Courtesy of Barbara Tapley , Fisher Realty - 10 Park Place
RealHub Information is provided exclusively for consumers' personal, non-commercial use, and it may not be used for any purpose other than to identify prospective properties consumers may be interested in purchasing. All information deemed reliable but not guaranteed and should be independently verified. All properties are subject to prior sale, change or withdrawal. RealHub website owner shall not be responsible for any typographical errors, misinformation, misprints and shall be held totally harmless.
Agent
Zaneta Mowatt
Call Zaneta today to schedule a private showing.
* Listings on this website come from the FMLS IDX Compilation and may be held by brokerage firms other than the owner of this website. The listing brokerage is identified in any listing details. Information is deemed reliable but is not guaranteed. If you believe any FMLS listing contains material that infringes your copyrighted work please click here to review our DMCA policy and learn how to submit a takedown request.© 2024 FMLS.